The seaside town of Porthcawl, Wales is planning to install anti-sex public toilets that would spray occupants with water and sound an alarm.
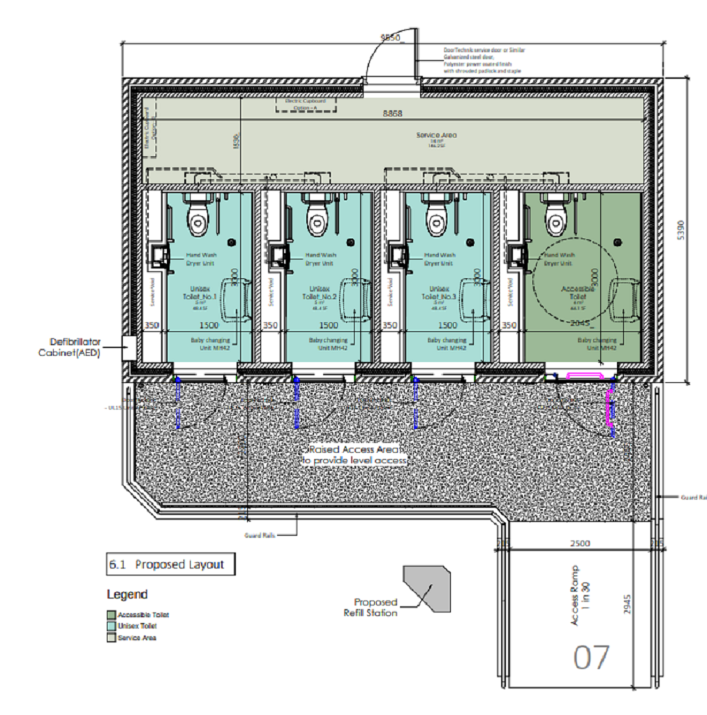
Violent movement sensors will automatically open the doors and sound high pitched alarms, with fine water jets soaking the interior of the units.
This could end very, very badly...
Weight sensitive floors would ensure that only one user could be in a cubicle at a time, to safeguard against “inappropriate sexual activity and vandalism".
Porthcawl Town Council is spending £170,000 ($206,333) on the futuristic toilets, according to Wales Online.

The planning documents detail a range of security features to deter rough sleeping, including an audible warning, combined with the lights and heating being switched off.
All toilets would be fitted with a full high pressure floor and wall washer which could be operated either after every user, or after a certain number of users per day.
Each night the toilets would close for 10 minutes while the unit undertakes a deep clean process.
Visitors to Porthcawl will have to pay to use the toilets, however, it has not been decided how much it will cost.

However, Twitter users have questioned how the systems, in particular the weight sensitive floors, would work in practice.
One said:
“Weight sensitive floors to detect more than one user? What baseline weight are they using? I'm easily the weight of two teenagers, and what about people who need assistance? I have to go in with my kids."
Another added:
“There are obvious serious questions about weight sensors, with potential for cruel humiliation of facility users."

The existing facilities are due to close in October, while the demolition and construction of the new building takes place.











@winnieharlow/Instagram






@realDonaldTrump/Truth Social
